Listed by Dawn A Semancik of Real of Ohio (dawnsemancikhomes@gmail.com,216-650-0746)
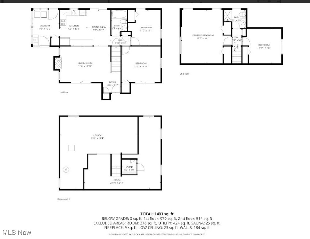
Looking for LAND in Avon? Look no further!! This updated cape cod sits on over 2.6 acres and close to shopping with public water/sewer! Enjoy the beautiful character this home has to offer while including the today's updates - including a gated driveway for convenience. The updated, wood-burning fireplace is the focal point of the living room as well as the restored, hardwood flooring. The open, eat-in kitchen has a large breakfast bar, updated stainless steel appliances, accent wall and access to the amazing yard which includes a new 12 x 12 storage shed on a cement pad. For simplicity, there is a spacious laundry room off the kitchen that includes washer/dryer and utility sink. There are 2 bedrooms on this level and an updated full bath. The primary suite is located on the second level and is very spacious along with a 2nd guest bedroom. The lower level is unfinished, but ready for finishing with drywall and ceiling already done for you! Also, there's a built-in ice maker and dry heat sauna in the basement that is the perfect way to end your day, relax and unwind. The roof is about 10 years old, HVAC (2017-2021) and HWT (2021) - all provide piece of mind. This home is ready for the next owner to take pride owning this large lot in Avon close to everything you need!

Listing Tools

Property Details of 34549 Detroit Road

Property Details

Interior Features

Exterior Features

Map Location

Based on information submitted to MLS Now as of January 19, 2026 3:56 AM EST . All data is deemed reliable but is not guaranteed accurate by the MLS. All information should be independently reviewed and verified for accuracy. Listing information is provided exclusively for consumers’ personal, noncommercial use and may not be used for any purpose other than to identify prospective properties consumers may be interested in purchasing.

Hi there! How can we help you?

Contact us using the form below or give us a call.

Send Us A Message:

I agree to receive marketing and customer service calls and text messages from Tracy Marx. To opt out, you can reply 'stop' at any time or click the unsubscribe link in the emails. Consent is not a condition of purchase. Msg/data rates may apply. Msg frequency varies. Privacy Policy.

Do not fill in this field:

This site is protected by reCAPTCHA and the Google Privacy Policy and Terms of Service apply.

Hi there! How can we help you?

Contact us using the form below or give us a call.

Send Us A Message:

Do not fill in this field:

This site is protected by reCAPTCHA and the Google Privacy Policy and Terms of Service apply.

Hi there! How can we help you?

Contact us using the form below or give us a call.

Send Us A Message:

Do not fill in this field:

This site is protected by reCAPTCHA and the Google Privacy Policy and Terms of Service apply.

Do not fill in this field:

This site is protected by reCAPTCHA and the Google Privacy Policy and Terms of Service apply.

Do not fill in this field:

This site is protected by reCAPTCHA and the Google Privacy Policy and Terms of Service apply.

Do not fill in this field:

This site is protected by reCAPTCHA and the Google Privacy Policy and Terms of Service apply.

$

Do not fill in this field:

This site is protected by reCAPTCHA and the Google Privacy Policy and Terms of Service apply.