Listed by Barry M Brizes of EXP Realty,LLC. (Barry.Brizes@eXpRealty.com,330-329-7725)
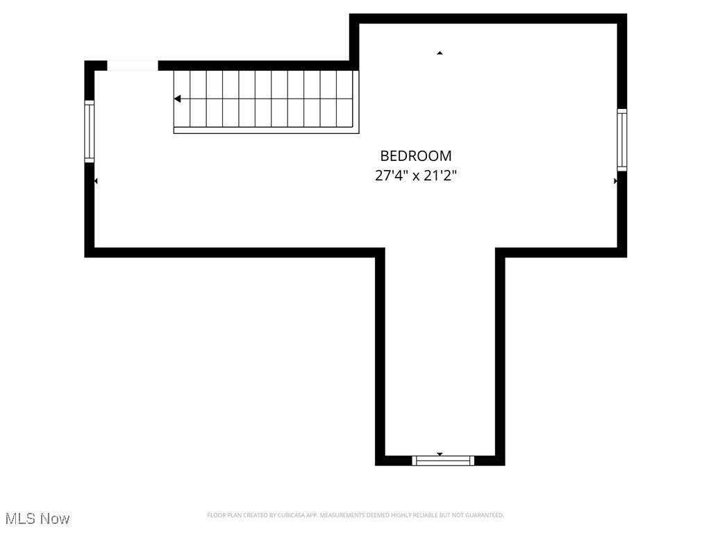
Charming 3-Bedroom Cape Cod on a Dead-End Street! This delightful home offers comfort, style, and convenience! Thoughtfully cared for and freshly painted, it beautifully blends classic charm with modern updates. The original oak floors have been lovingly maintained, adding warmth and character throughout. A full bathroom is located on the first floor, with an additional half bath in the partially finished lower level with a gas hookup and output for a gas fireplace. The spacious second floor offers endless possibilities - ideal for a private owner's suite, home office, or play area for children. Major updates include vinyl windows '07, furnace '18, hot water tank '25, newer roof on house, garage and shed '25. The seller is conveying all kitchen appliances, as well as the washer and dryer, for your convenience. Step outside to enjoy the park-like, fenced backyard featuring wooded views and a storage shed for extra space. Additional highlights include glass block windows and 100-amp electrical service. Seller providing a home warranty for peace of mind. Perfectly located just minutes from Wallhaven, Highland Square, Summit Mall, and Montrose - this home offers the best of both tranquility and accessibility. Don't miss your chance to make this beautiful home yours - call today to schedule your private tour!

Listing Tools

Property Details of 1644 Idlewood Avenue

Property Details

Interior Features

Exterior Features

Map Location

Based on information submitted to MLS Now as of November 12, 2025 11:29 PM EST . All data is deemed reliable but is not guaranteed accurate by the MLS. All information should be independently reviewed and verified for accuracy. Listing information is provided exclusively for consumers’ personal, noncommercial use and may not be used for any purpose other than to identify prospective properties consumers may be interested in purchasing.

Hi there! How can we help you?

Contact us using the form below or give us a call.

Send Us A Message:

I agree to receive marketing and customer service calls and text messages from Tracy Marx. To opt out, you can reply 'stop' at any time or click the unsubscribe link in the emails. Consent is not a condition of purchase. Msg/data rates may apply. Msg frequency varies. Privacy Policy.

Do not fill in this field:

This site is protected by reCAPTCHA and the Google Privacy Policy and Terms of Service apply.

Hi there! How can we help you?

Contact us using the form below or give us a call.

Send Us A Message:

Do not fill in this field:

This site is protected by reCAPTCHA and the Google Privacy Policy and Terms of Service apply.

Hi there! How can we help you?

Contact us using the form below or give us a call.

Send Us A Message:

Do not fill in this field:

This site is protected by reCAPTCHA and the Google Privacy Policy and Terms of Service apply.

Do not fill in this field:

This site is protected by reCAPTCHA and the Google Privacy Policy and Terms of Service apply.

Do not fill in this field:

This site is protected by reCAPTCHA and the Google Privacy Policy and Terms of Service apply.

Do not fill in this field:

This site is protected by reCAPTCHA and the Google Privacy Policy and Terms of Service apply.

$

Do not fill in this field:

This site is protected by reCAPTCHA and the Google Privacy Policy and Terms of Service apply.